Бізнес-план фуд-трака з розрахунками або як відкрити фуд-трак — ITstatti.in.ua
Останнє оновлення: Понеділок, 11 липня 2022 Автор: Андрій Конотопський
Приблизні дані:
- Початкові витрати – від 840 000 грн.
- Окупність – 4-6 місяців.
- Рекомендована площа — 8 м2
Примітка: Даний бізнес-план, як і всі інші в розділі Бізнес-плани, містить розрахунки середніх цін, які у вашому випадку можуть відрізнятися. Тому рекомендуємо вам робити розрахунки для свого бізнесу індивідуально.
У даній статті ми склали докладний бізнес-план фуд-трака з розрахунками.
Стан і розвиток ринку
Ринок вуличної торгівлі, починаючи з 2011 року, знаходиться в постійному стресі. Операторів стріт-фуду до початку 2016 року стало менше втричі. Причин тому кілька:
- Підвищення попиту на стаціонарні кафе — головну роль в цьому зіграли торгові центри, де люди проводять більше часу, ніж на вулиці
- Політика місцевої влади-недавнє знесення ларьків підтвердив той факт, що влада націлена очистити міста від вуличних точок харчування і зовсім неохоче йдуть на узгодження нових об’єктів
- Низька якість страв — вулична їжа обросла стереотипами і в свідомості більшості існує як крайня (і небезпечна) міра втамування голоду
При всьому цьому інтерес до мобільних кафе зростає.
Кав’ярня, піцерія або бургерная на колесах — новий формат, якого ще належить поборотися з класичним фаст-фудом за перше місце в рейтингу напрямків HoReCa.
Фуд-трак, як втілення стріт-фуду, стоїть осторонь від вже приївшихся форматів. Це свіже віяння, яке прийшло з Заходу, перспективно як для початківців, так і для тих, хто вирішив вийти за рамки стаціонарного бізнесу і «піти в народ». Фуд-трак — це кафе на базі вантажного автомобіля. Авто переоснащують, роблять всередині кухню, монтують ресторанне обладнання, зовні брендують і ставлять в місцях з великою прохідністю.
Особливості фуд-трака як бізнесу
— Мобільність. Фуд-трак не чекає, коли прийде клієнт, а їде до нього сам. Знаючи про скупчення цільової аудиторії в певному місці, кафе на колесах приїжджає туди і пропонує свій продукт.
— Економія на будівництві та оренді. Немає інвестицій в пошук приміщення, ремонт, перепланування і дизайн-проект. З урахуванням збільшених цін на оренду нерухомості — це серйозна підмога.
— Швидка окупність. При обслуговуванні 100 осіб в день фуд-трак окупиться в середньому через 4-6 місяців.
— Швидкий вихід на ринок. При покупці готового проекту фуд-трака, в який входить автомобіль, комплект обладнання та інвентарю, брендування і проектування, на ринок реально вийти за 45 днів. Цього достатньо, щоб встановити обладнання, розробити меню, оформити машину і вибрати місце.
З чого почати? Вибір формату
Фуд-трак цікавий не тільки своєю незвичайний формою організації продажів, але і підходом до якості страв. Тут немає нічого від вуличної їжі минулого, що гарантувала споживачеві гастрит. Фуд-трак пропонує смачні, свіжі та якісні страви та напої.
Популярні формати фуд-трака
— Кав’ярня. В меню — не менше 20 позицій кави, кавових напоїв, коктейлів, смузі. З їжі — десерти, сендвічі, випічка. Головне-дорога і потужна кавоварка, яка варить справжню каву, що перевершує напій з вендингових апаратів.
— Піцерія. Піцу готують на кухні фуд-трака, в меню — не менше 10 позицій + салати, напої та морозиво.
— Бургерна. Бургери сьогодні в тренді, але щоб відбудуватися від гігантів цього сегмента, потрібні авторські рецепти.
— Стейки. Головне для цього формату — гарне м’ясо. Решта зроблять добротний гриль і жарильна поверхня.
Фуд-трак із професійним обладнанням підходить для приготування суші, локшини, пасти, випічки, пиріжків, осетинських пирогів і т. д.
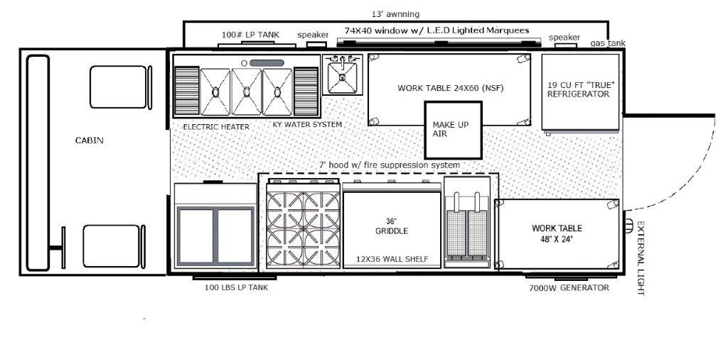
Для приблизного розрахунку інвестицій візьмемо проект фуд-трака «Бургерна». Рекомендована площа — 8 м2, зроблений на базі автомобіля BAW.
Концепція
Це покрокова інструкція відкриття бізнесу. У випадку з фуд-траком в концепції обов’язково розглядаються наступні питання:
Де розташовуватися?
Сьогодні законодавство ніяк не регламентує діяльність фуд-траків. Хоча законопроект про статус мобільних кафе підготовлений і знаходиться на розгляді. Поки це біла пляма, але все ж до фуд-траків пред’являються вимоги, аналогічні стаціонарним підприємствам харчування.
В першу чергу необхідно вирішити, де буде розташовуватися фуд-трак.
Є кілька варіантів:
— Взяти участь в аукціоні на надання ділянки муніципальної землі. Але, як показує практика, лоти у вигляді ділянок дістаються в основному великим торговим мережам для сезонної або постійної діяльності.
— Оренда приватної території. Цей варіант реальний і вигідний. Ви орендуєте ділянку при ТЦ, розважальному комплексі, бізнес-центрі і отримуєте відвідувану точку, а також доступ до інженерних комунікацій, санвузлів і т. д.
— Участь у заходах. З організаторами фестивалів, ярмарків, фуд-фестів, концертів, пікніків укладається договір оренди. Сума оренди залежить від масштабу і статусу заходу. Ціновий діапазон — від 1200 до 12 000 грн. в день. Але і прохідність різна — перший провінційний маркет їжі відвідають всього 200-300 осіб, а великий рок-фестиваль — понад 20 тисяч.
Важливо розрахувати пропускну здатність фуд-трака, тобто максимальну кількість страв за одиницю часу. Щоб не було черг і довгого очікування замовлення, можна взяти в оренду у організаторів корнер і додаткове обладнання, а також найняти тимчасовий персонал для прискореної роботи об’єкта.
— Несанкціонована торгівля. На свій страх і ризик можна ставити фуд-трак в будь-якому людному місці, але це загрожує адміністративною відповідальністю і втратою дозволу на діяльність.
Який автомобіль вибрати?
Марка і можливості автомобіля залежать від цілей бізнесу.
— BAW оптимальний для роботи в межах мегаполісів — парки, вулиці і площі міст, зони відпочинку, пляжі. Зручна, маневрена і компактна машина.
— Газель підходить для подолання середніх відстаней і роботи в сільській місцевості, санаторіях, пансіонатах, будинках відпочинку, в малих містах. На Газелі можна виїжджати на заходи в інші області. Широка дилерська мережа гарантує швидкий ремонт автомобіля в форс-мажорних обставинах.
— МАЗ має велику, багатофункціональну і продуктивну кухню на базі потужного, але економічного тягача. У цьому автомобілі готують великі обсяги страв за одиницю часу. Фуд-трак на мазі ідеальний для експлуатації в гірській місцевості, в будь-яких кліматичних зонах, на значній відстані від основної бази.
На яку цільову аудиторію розраховано?
- Характеристика клієнта
- Потреби аудиторії
- Канали комунікації з аудиторією
- Цілі відвідування фуд-трака
Яке оточення проекту?
- Інфраструктура території, де стоїть фуд-трак
- Конкурентне середовище
- Наявність поруч розважальних або спортивних зон, навчальних закладів, пішохідних вулиць
Штат
- Кількість штатних одиниць і повноваження
- Робота з напівфабрикатами або власне виробництво
- Підбір та навчання персоналу
Оснащення
- Переобладнання автомобіля або покупка готового фуд-трака
- Проектування
- Підбір обладнання
- Брендування
Перспективи розвитку
- Сезонний або постійний бізнес
- Розширення до мережі
- Створення власного бренду
Автомобіль
Для фуд-трака обирають легкі класи вантажівок, де достатньо місця для встановлення обладнання та роботи персоналу.
Приблизні розцінки на поширені авто для фуд-трака:
- BAW — 650 000 грн.
- Газель — 734 000 грн.
- Mercedes — 922 000 грн.
- Volkswagen — 1 300 000 грн.
Проектування
Проектування фуд-трака — вагома стаття витрат. Є складність в підключенні машини і обладнання до інженерних мереж. Для прикладу візьмемо електропостачання.
Якщо фуд-трак працює автономно, тобто напівлегально, не сплачуючи нікому оренду, його оснащують або генератором, або перетворювачем. І те, і інше дорого і зі своїми недоліками. Генератор обов’язково повинен відповідати потужності вимогам обладнання на кухні і при максимальному завантаженні його вистачить лише на 5 годин.
Перетворювач же працює від акумуляторів, і щоб його вистачило на робочий день, автомобіль часто заводять, а це неминуче призводить до зносу двигуна і витрати бензину. Найрозумніший вихід-підключення до мережі.
Ще один проблемний момент — вентиляція і кондиціонування. Кухня фуд-трака — приміщення маленьке.
Концентрація обладнання і людей на один м2 практично екстремальна. Спека в приміщенні і забруднення повітря продуктами горіння неприпустимі.
Обладнання
Комплект обладнання розрахований на виробництво і продаж бургерів, сендвічів, ролів, паніні, картоплі-фрі, чаю та свіжозвареної зернової кави. Пропускна здатність — 40-60 осіб на годину.
Обладнання (ціни в грн)
- Стіл морозильний HICOLD — 27 796
- Стіл охолоджуваний для піци HICOLD — 27 436
- Стіл робочий острівний — 4 930
- Кип’ятильник «Convito» — 2 112
- Поверхня для смаження AMITEK — 15 696
- Фритюрниця AMITEK — 3 742
- Ваги CAS — 4 276
- Фасувальна станція для картоплі фрі — 62 304
- Кофемашина Saeco Odea Go Black — 14 040
- Ємність суцільнотягнута мийка — 3 730
- Полиця настінна суцільна — 905
- Стіл виробничий пристінний — 4 270
- Шафа для одягу — 1 220
Інвентар (ціни в грн)
- Гастроємність Luxstahl з нержавіючої сталі GN 1/3 (12 шт.
) — 2 995 - Гастроємність Luxstahl з нержавіючої сталі GN 1/1 (10 шт.) — 3 104
- Ніж кухарський — 249
- Ніж універсальний — 158
- Лопатка кухарська — 170
- Дошка обробна — 246
- Гастроємність з полікарбонату — 1120
- Кришка з полікарбонату — 617
- Млин для перцю — 662
Брендування
Зовнішній вид фуд-трака — основа успіху. Фуд-трак повинен привертати до себе увагу, виділятися на місцевості, відрізнятися від конкурентів, інформувати споживача про продукт.
У брендування входить:
- Розробка фірмового стилю (логотип, колір, шрифт, персонаж)
- Виготовлення та встановлення вивісок, маркізів, дахових конструкцій і т. д.
- Обклеювання автомобіля
Базова вартість послуги — 10 000 грн.
Розробка меню
Авторський підхід до меню фуд-трака дозволить відбудуватися від конкурентів. Це особливо актуально, якщо фуд-трак коштує близько ТЦ, де багато аналогічних операторів на фуд-корті.
Запрошений шеф-кухар розробить меню під вимоги бізнесу і можливості обладнання. Середня вартість розробки меню — від 16 000 грн.
Зразкове базове меню «Бургерної»
- Бургер подвійний з яйцем і свинячою котлетою
- Бургер курячий
- Рол з омлетом і беконом
- Бургер свинячий
- Рол з омлетом і свинячою котлетою
Реєстрація
Для фуд-трака оптимальна форма власності — ІП. Її переваги:
- Швидка реєстрація ІП, в тому числі через Інтернет
- Держмито — 320 грн.
- Не потрібні статут, статутний капітал, печатка і розрахунковий рахунок
- Реєструється тільки на одну людину
- Максимальний штраф при адміністративній відповідальності — 20 000 грн.
- Фіксований платіж у Пенсійний Фонд при доході не більше 120 000 грн, у 2016 році – 7 742,59 грн. Понад 120 000 грн. + 1% від суми перевищення.
- Немає звіту за обладнання, що використовується в рамках підприємницької діяльності
- Можна вільно розпоряджатися коштами на розрахунковому рахунку
- Господарські рішення не протоколюються
- Просто ліквідується (закривається)
- За бажанням відкривається розрахунковий рахунок
Для реєстрації ІП необхідні
- Заява про державну реєстрацію фізичної особи як ІП.

- Копія паспорта громадянина
- Документ, що підтверджує оплату державного мита.
Фактори ризику
Поломка обладнання
При виході з ладу технологічного обладнання висока ймовірність втрати продажів. При укладенні договору з компанією, що поставляє вам обладнання, обов’язково перевірте наявність пункту про надання заміни обладнання в разі поломки. Це убезпечить вас під час ремонту вашого основного обладнання.
Зниження кількості клієнтів через погодні умови
Клієнтами фуд-трака зазвичай є гуляють люди, і в період погодних негод кількість продажів може різко знизитися. На цей випадок завжди потрібно мати запасний варіант, наприклад, оренда місця біля великого ТЦ — в період негоди потік їх клієнтів завжди зростає.
Низька якість сировини
Якщо смак вашого продукту буде не найкращим, реклама і незвичайний вигляд вашої торгової точки не врятує. Ретельно вибирайте постачальників, проводьте бракераж готових виробів.
Зміна в законодавстві для фуд-трака
Так як фуд-трак є нестаціонарним торговим об’єктом, в законах, що регламентують його роботу, приймаються нові вимоги. Щоб не нарватися на штрафи, стежте за змінами і новими поправками в законах.
Рентабельність і окупність
Максимальний термін окупності фуд-трака при старті в сезон — 4-6 місяців. Якщо через півроку окупності немає, значить:
- Неправильно вибрано місце
- Немає індивідуального стилю і УТП
- Низька якість страв
- Невдале меню
Націнка на бургери, картоплю-фрі, сендвічі становить 200-250%. Це не найвищий показник для HoReCa, тому що прибуток у фаст-фуді робить відвідуваність.
Середній чек — 140 грн.
Важливо: Пам’ятайте, що ви можете самостійно скласти бізнес-план саме для свого бізнесу. Для цього прочитайте статті:
- Як скласти бізнес-план самому — покрокова інструкція з написання бізнес-плану + зразки
- Як почати свій бізнес?
Прохання наостанок: Всі ми люди і можемо допускати помилки, щось не врахувати і т.
д. Не судіть строго, якщо даний бізнес-план або інші в розділі Бізнес-плани здалися вам неповними. Якщо у вас є досвід в тій чи іншій діяльності або ви побачили недолік і можете доповнити статтю, повідомте будь ласка в соц. мережах! Тільки так ми спільно зможемо зробити бізнес-плани більш повними, докладними і актуальними. Дякую за увагу!
Відео
Підписуйтесь на нашу розсилку, щоб завжди бути в курсі нових цікавих статей про заробіток і малий бізнес!
Сподобався матеріал? Будь ласка, репости!
Вітаю всіх на нашому інтернет-журналі. Я — Вольдемар Воронцовський. Цей матеріал написаний і опублікований одним з наших авторів (експертом у своїй справі). За кожною статтею стоїть досвідчений співробітник нашої команди, який перевірив матеріал на помилки і актуальність. Познайомитися з нами можна в розділі — «Редакція сайту».
Підписуйтесь на наш канал в Telegram і будьте в курсі всіх подій
- Бізнес ідеї 2023 – 40 варіантів з мінімальними вкладеннями для малого бізнесу + нові ідеї, яких ще немає в Україні
- Новорічний бізнес: ТОП-36 бізнес-ідеї
Додати коментар
Беларус во время пандемии открыл бизнес в Польше
Открыть бизнес в пандемию в Польше не сложно, но, чтобы он развивался, надо хорошо проработать концепцию, считает Даниил Нерода.
В Белостоке он живет шестой год, тут учился в университете и мечтал о собственном бизнесе. В конце 2020 года Даниил одолжил деньги у знакомых и открыл фудтрак с острыми блинчиками. Про запуск и ведение бизнеса в Польше он рассказал журналисту Hrodna.life.
Даниил родом из Бреста. В Белосток он переехал с родителями в 2015 году и поступил в Белостокскую Политехнику (Белостокский Технический Университет). Там в рамках дипломной работы он и разработал идею собственного фудтрака. После учебы Данил решил, что проект надо воплотить в жизнь.
«Нужно было продумать концепт-план, а у меня он уже был готов. Поэтому я сразу искал финансовую помощь», — говорит Даниил.
Где искать средства на стартап в Польше?Собственных денег на открытие бизнеса у беларуса не было. Получить средства можно было несколькими путями:
Первый вариант — взять кредитЭто, по мнению Даниила, самый долгий и трудный путь. Нужно просто работать, сделать себе финансовую кредитную историю и после обращаться в банк за кредитом.
«Но это очень длительный процесс, тем более если запрашивает кредит не поляк», — говорит Даниил.
Нужно открыть фирму, идти в местную администрацию и там рассказывать про свой проект. Заявку рассматривают в течение месяца.
«На старте некоторым помогают. Помощь эта — от 2500 до 15 000 злотых (540−3250 евро). Но такая помощь для молодого предпринимателя не всегда выгодна. Надо за каждую злотувку отчитываться», — объясняет Данил. Он считает, что такую помощь получить легко даже негражданину Польши
Администрация города выделяет малому бизнесу деньги безвозмездно, но их использование серьезно контролируют. При этом индивидуальный предприниматель должен за полгода взять на работу двух человек.
Третий вариант — помощь фондовЭтот вариант показался Даниилу одним из самых интересных и реалистичных.
В каждом регионе Польши есть фонды, которые помогают развитию бизнеса в разных сферах.
Финансирование получает тот, кто выиграет тендер — представит лучший проект.
«Надо написать бизнес-план. Мне было проще — он у меня был сразу после университета. Дальше надо защищать свою работу перед представителями фонда, который финансирует проекты», — объясняет Даниил.
Фудтрак Данила перед открытием в конце 2020 годаВыиграл тендер, но потом отказался
В 2019 году Даниил презентовал проект фудтрака в одном из европейских фондов, который в течение квартала собирал по всей Польше проекты. В среднем в фонд подается около 1000 работ. Финансирование получают лишь от 5 до 15 лучших. Данил запросил у спонсоров 120 000 злотых (27 000 евро).
«Я выиграл среди конкурсантов, но потом начались вещи, о которых мне не сказали заранее. Как оказалось, деньги даются с отсрочкой на три года и без процентов. Нужно вернуть их после того, как ты сможешь зарабатывать», — говорит Данил. При этом, по его словам, долг можно вернуть и позже, если вовремя не получается. Даниил добавляет, что фонды заинтересованы в развитии бизнеса.
«Основной проблемой для меня было то, что надо было предоставить поручителей, которые зарабатывали на постоянной основе не менее 3500 злотых (760 евро) в течение последних трёх лет. Или заложить имущество. У меня таких знакомых и тем более имущества в Польше не было. В итоге я отказался от тендера».
Запустил бизнес за 50 000 злотых
Открытие бизнеса растянулось на 1,5 года. В итоге фудтрак начал работать в конце 2020-го. Поваром стала его девушка Алина. У нее уже был опыт работы в общепите.
«Средства для открытия пришлось самому зарабатывать и одалживать. Так что всю сумму еще придется возвращать. Но я получил полезный опыт. Я узнал, что деньги, выделяемые фондом, можно потратить гораздо грамотнее, чем я изначально планировал».
На реализацию проекта Данил потратил до 50 000 злотых (10 850 евро). В эту сумму вошла покупка грузового автомобиля и переоборудование его под фудтрак. Правда, парень говорит, что можно было бы обойтись и 35 000 злотых (7600 евро).
«Все только от знаний зависит. Я не знал многих вещей и купил то, что можно было не покупать. Сейчас я знаю, где можно сэкономить».
Можно обратиться в специальную фирму, но это в 6 раз дороже
«Точную сумму я не могу сказать, потому что я ее не знаю. Самое дорогое, что у нас было — это машина. Она, со всеми налогами и регистрациями, стоила 25 000 злотых (5420 евро). Все остальное в машине мы делали своими руками, хотя был вариант обратиться в компанию, которая подготавливает фудтраки».
Со слов парня, компания требовала просто космических денег. Например, просто вставить готовую оконную раму стоит 5000 злотых (1085 евро). А если заказать в фирме стекло специально для фудтрака и вставить его — целых 20 000 злотых (4340 евро). Машина, которую купил Даниил, стоила практически столько же.
Фудтрак Даниила стоит в Белостоке на улице Браницкого. Фото: Руслан Кулевич«То же со всеми остальными вопросами: покраска, пол и другое. Общая сумма, которую мне назвали для подготовки машины внутри, — 80 000 злотых (17 360 евро).
Я обратился в три разных места — и это было самое дешевое. Поэтому я бы советовал разобраться самостоятельно и сделать все максимально своими руками. Можно все сделать самостоятельно и гораздо дешевле».
По словам Даниила, незачем переплачивать и тратить 80 000: все можно сделать самому в 6−7 раз дешевле.
Обязательный пункт — поход в санэпидемслужбу
Перед созданием фудтрака важно сходить в санэпидемслужбу, говорит Даниил. Там подробно расскажут, что нужно делать, чтобы в будущем избежать проблем.
«Это что-то наподобие обычного ремонта в квартире, только вы должны полностью следовать правилам. Шкафчик специальный, холодильник. Никаких в этом проблем нет».
Читайте также: Без водки и сигарет, но с чистыми улицами. Как живет приграничная Кузница без беларусов
Острые блинчики и мерчОсобенность фудтрака Даниила — острые блинчики. Он сам фанат острой еды и на этом решил сделать акцент в своем бизнесе.
«У нас в фудтраке есть много американских острых соусов для блинов.
И мы придумали для людей игру, которую подсмотрели в Германии. Это хот-челендж: надо скушать семь блинов по возрастанию остроты соусов. Клиент может получить футболку, если пройдет семь уровней остроты».
У фудтрака уже появился свой мерч. Тем, кто покупает ежы более чем на 35 злотых, дарят шоперы. На подходе — кепки и толстовки.
- Меню фудтрака. Фото: Руслан Кулевич
- Соусы для блинов. Фото: Руслан Кулевич
- Блин из фудтрака. Фото: Руслан Кулевич
Даниил советует не экономить на внешнем виде фудтрака и обратиться к художнику. На поклейку тоже не стоит жалеть денег.
«Есть поклейка за 300−400 злотых (65−86 евро), а есть и за 2000−3000 (434−650 евро). Нужно выбрать что-то посередине. Желательно у той фирмы, которая этим уже занималась. Дальше надо работать над своим именем. Я бы не советовал жалеть денег на рекламу, на какие-то фишки, которых у других нет».
Свой фудтрак Даниил назвал «All Ready». Фото: Руслан КулевичЗапуск бизнеса в пандемиюПандемия сильно повлияла на запуск бизнеса, говорит Данил.
Он боялся открываться, но рискнул.
«Первые полтора — два месяца клиентов вообще не было. Поэтому нужно иметь какую-то подушку безопасности. Если открывать фудтрак, то лучше в теплое время года. Сейчас из-за пандемии людей очень мало, если вводят какие-то новые ограничения, то первые три дня вообще никого нет. Люди боятся лишний раз куда-то выходить. Я думаю, это сейчас во всех местах так. В стационарных местах и вовсе нельзя появляться. Еще минус фудтрака — если идет дождь, то тоже людей нет».
Клиентов Даниил завлекает бонусными майками, которые можно получить за 7 блинов. Фото: Руслан КулевичПоесть блинов к Даниила приходят не только поляки, но и приезжие беларусы. С некоторыми он делится историей открытия бизнеса в Белостоке.
На электричестве надо экономитьОсновной налог на деятельность — 29%. Кроме этого и аренды места, траты Данила зависят от объёма потребляемой фудтраком электроэнергии. Сейчас он старается экономить и не работает больше 8 часов.
«Фудтрак потребляет очень много электричества. Аренда может быть разная: от 1000 до 5000 злотых (217 — 1085 евро), но она окупается. А вот электроэнергия может и не окупиться. У нас было два варианта: платить кому-то за электричество отдельно, но потерять мобильность, или платить самим за аккумулятор. Мы выбрали первый вариант».
Ошибся с местом, но быстро нашел лучше
После старта проекта фудтрак беларуса стоял в Белостоке на Кавалерийском рынке. Место оказалось неудачным. Там было два существенных минуса: дорогая аренда и не тот контингент, который нужен был Даниилу.
«Новое место на улице Браницкого мы нашли случайно. Я написал объявление в группе в Facebook, что ищу точку. Мне написали больше 20 человек. Я даже не думал, что в Белостоке есть столько мест. С каждым пообщался и выбрал то место, где мне больше понравилось, где собственник был более открытый для общения. И не прогадал: новое место лучше и по аренде, и по клиентам».
Советы начинающим
Данил рассказывает, что перед открытием бизнеса в Польше нужно все продумать, чтобы не делать лишних трат.
- Нужно точно определится с видом деятельности.
- Не стоит покупать под кафе помещение, лучше на первое время взять в аренду.
- Лучше не начинать заниматься тем, чего вы раньше не делали. Например, если вы захотели открыть ресторан, но никогда не работали ни поваром, ни официантом, ни менеджером, то лучше не открывайте. Сначала поработайте в этой сфере.
- Не стоит начинать сразу с открытия фирмы: через полгода вы поймете, что у вас просто не хватает денег.
Читайте также: Белосток приостановил сотрудничество с Гродно из-за репрессий против поляков
Как написать бизнес-план для грузовиков с едой
Грузовики с едой находятся в авангарде влияния на будущие тенденции в области продуктов питания и могут быть очень прибыльным бизнесом. Но прежде чем вы сможете начать свой собственный бизнес по производству грузовиков с едой , вам нужно спланировать свою концепцию и то, как вы будете финансировать эту мечту.
Написание бизнес-плана для грузовиков с едой поможет вам изложить детали вашего нового предприятия и ответить на вопросы потенциальных инвесторов. Поскольку это очень важный шаг, его следует выполнить еще до того, как вы0003 купить фудтрак .
Магазин всех принадлежностей для грузовиков с едой
Нажмите на шаги ниже, чтобы узнать о разделах бизнес-плана для грузовиков с едой:
- Резюме
- Описание компании
- Анализ рынка
Организация и управление- Линия услуг или продуктов
- Маркетинг и продажи
- Запрос на финансирование
- Финансовые прогнозы
- Приложение
Шаблон бизнес-плана продовольственного грузовика
Мы рассказали, как составить ваш бизнес-план, и перечислили ключевые темы, которые вы должны осветить. Ниже вы найдете несколько предложений бизнес-планов для грузовиков с едой, которые дадут вам представление о том, что следует включить при написании собственного.
1. Резюме
Первым разделом вашего бизнес-плана для грузовиков с едой является краткое изложение. Думайте об этом как о своем вступлении к читателю. Чтобы произвести хорошее первое впечатление, вы должны быть краткими и интересными, не объясняя слишком много мелких деталей. Вы можете осветить тонкости вашего бизнеса в следующих разделах. Это ваш шанс показать, что из себя представляет ваша компания, как вы ожидаете ее роста и почему ваш фургон с едой будет успешным.
В кратком изложении вы должны указать пробел на целевом рынке, который может заполнить ваша компания. Также неплохо рассказать, как ваши знания и опыт принесут вам пользу, когда вы преследуете цели своей компании по открытию бизнеса по производству грузовиков с едой. Хотя резюме — это первый раздел, который прочитает ваш потенциальный инвестор, вы должны написать его в последнюю очередь.
Резюме бизнес-плана для грузовиков с едой Соображения
Ниже приведены ключевые темы, которые следует включить в резюме для грузовиков с едой:
- Какие блюда вы планируете предлагать?
- Где вы планируете продавать еду?
- Почему этот вид еды будет пользоваться успехом в том районе, где вы планируете его продавать?
- Каковы прогнозируемые затраты и прибыль вашего бизнеса по производству грузовиков с едой?
- Каковы ваши будущие цели для вашего бизнеса по производству грузовиков с едой?
2.
Описание компанииИспользуйте этот раздел вашего бизнес-плана для грузовиков с едой, чтобы объяснить детали вашей компании. Опишите свой бизнес по производству грузовиков с едой и расскажите, как он будет ценным дополнением к существующему рынку. По сути, это раздел, в котором вы можете расширить темы, которые вы кратко упомянули в резюме.
Food Truck Company Description Соображения
Подумайте об этих вопросах, связанных с описанием компании, занимающейся фургонами, когда вы пишете свой бизнес-план:
- Какой это будет фургон с едой ( грузовик, прицеп или тележка с едой )?
- Почему фургон с едой, а не кирпичная локация?
- Вы будете готовить еду в грузовике или на кухне ?
- Как продукты питания, которые вы предоставляете, будут конкурировать с пунктами меню существующих фургонов с едой или ресторанов в вашем целевом районе?
- Какую конкретную потребительскую нишу вы будете обслуживать?
- Каково ваше общее конкурентное преимущество (ваша уникальная кухня, выдающееся обслуживание клиентов, ваш креативный маркетинг и т.
д.)?
3. Анализ рынка
В разделе анализа рынка вашего бизнес-плана грузовиков с едой вы объясните и подробно объясните, как вы впишетесь в существующий рынок. Прежде чем писать этот раздел, важно провести обширное исследование о том, как начать бизнес по производству грузовиков с едой, чтобы вы могли включить надежные результаты исследований в поддержку своих выводов.
Маркетинговый анализ продовольственных грузовиков для бизнес-плана
Осветите следующие темы в разделе анализа рынка продовольственных грузовиков:
- Опишите пищевую промышленность, , включая текущие тенденции, , темпы роста, основные группы потребителей и т. д.
- Определите возрастную группу, географический регион, социально-экономический статус и другую ключевую демографическую информацию
целевого рынка. - Определите потребности вашего целевого рынка и любые сезонные тенденции, которые могут повлиять на ваш бизнес.

- Определите размер и потенциал роста вашего целевого рынка.
- Укажите, как вы получите значительную долю рынка в вашем регионе.
- Объясните свою структуру ценообразования, уровни валовой прибыли и любую другую финансовую информацию.
- Определите своих конкурентов и объясните, как вы сделаете свой грузовик с едой достойным конкурентом на текущих и будущих рынках.
- Преодолейте любые препятствия, с которыми вы можете столкнуться, когда начинаете свой бизнес по производству грузовиков с едой.
- Укажите пищевые кодексы и другие правительственные постановления, которые повлияют на ваш бизнес.
Вернуться к началу
4. Организация и управление
Следующим шагом вашего бизнес-плана для грузовиков с едой является определение вашей организации и плана управления. Объяснение вашей организации и структуры управления может показаться не таким уж важным, если вы надеетесь открыть фудтрак с двумя людьми.
Однако определение обязанностей с самого начала помогает избежать путаницы по мере роста и развития вашего бизнеса.
Этот раздел должен включать подробный профиль вашей управленческой команды, информацию о собственности вашей компании , зарплате и льготах, которые вы предлагаете своим работникам, а также о возможностях роста для людей в вашей организации. Создание диаграммы, показывающей организационную структуру вашего бизнеса, — отличный способ проиллюстрировать, что все основы охвачены, от поваров на кухне вашего грузовика с едой до бухгалтера, который балансирует вашу чековую книжку.
Информация о владении продовольственным грузовиком
Включите эту информацию о владельце в раздел организации и управления продовольственными грузовиками вашего бизнес-плана:
- Юридическая структура (Вы создаете партнерство? Вы индивидуальный предприниматель?)
- ФИО владельцев
- Доля компании, которой владеет каждый владелец
- Форма собственности (обыкновенная акция, генеральный товарищ и др.
) - Складская информация
Профили вашей группы управления грузовиками с едой
В раздел управления бизнес-плана для грузовиков с едой необходимо включить следующую информацию.
- ФИО руководителя
- Должность и основные обязанности
- Образование
- Предыдущее место работы и его/ее положение в вашей компании
- Важный опыт и навыки, которые помогут вашему бизнесу добиться успеха
- Прошлый послужной список с твердыми цифрами, подтверждающими его
- Признание пищевой промышленности
- Участие сообщества
- Зарплата
5. Линия услуг или продуктов
Используйте раздел услуг и линейки продуктов, чтобы описать пункты меню вашего фудтрака. Какие уникальные вкусы вы предлагаете и как ваши продукты будут привлекать прохожих и превращать их в преданных поклонников? В этом разделе вы можете продемонстрировать свои новаторские идеи, описать свои продукты и объяснить, как вы будете удерживать клиентов, чтобы они возвращались снова и снова.
Описание меню фудтрака для бизнес-плана
Вот несколько вопросов, которые следует учитывать при создании прибыльного меню для вашего фудтрака:
- Какую кухню вы предложите?
- Почему вы так увлечены этой едой?
- Почему клиенты будут есть вашу еду?
- В чем ваше конкурентное преимущество?
- Ваши рецепты хорошо зарекомендовали себя или все еще разрабатываются?
Продуктовая линейка Food Truck
Далее вам необходимо объяснить, на каком этапе жизненного цикла находятся ваши продукты, ответив на следующие вопросы:
- Вы запускаете совершенно новый продукт?
- Вы уже завоевываете популярность на своем целевом рынке?
- Что может вызвать снижение спроса на ваш продукт?
Интеллектуальная собственность Food Truck
Обсудите любую интеллектуальную собственность, которая может быть включена в пункты меню вашего Food Truck, чтобы защитить их:
- Есть ли у вас какие-либо коммерческие секреты или патенты в работе?
- Потребуете ли вы от своих сотрудников подписывать какие-либо соглашения о неразглашении или неконкуренции?
Прогнозы фудтрака
Покажите, что вы обдумывали будущее меню для фудтрака, ответив на следующие вопросы:
- Как, по вашему мнению, меняется ваше меню с течением времени?
- Вы разрабатываете новые продукты?
- Планируете ли вы когда-нибудь владеть парком грузовиков с едой?
- Будете ли вы расширять свой охват, посещая ярмарки продовольственных грузовиков или заказывая мероприятия с обслуживанием?
6.
Маркетинг и продажиЧасть вашего бизнес-плана по маркетингу и продажам сосредоточена на повышении лояльности клиентов. Вам нужно будет определить свой общий стратегии маркетинга и продаж , но то, как вы это сделаете, полностью зависит от вас. Важно помнить, что клиенты ценят оригинальность, будь то использование узнаваемого дизайна фургона с едой или создание уникального предложения для вашего фургона с едой.
Вопросы по маркетингу и продажам грузовиков с едой
Дайте ответы на эти важные вопросы в разделе продаж и маркетинга грузовиков с едой:
Как вы будете конкурировать с другими грузовиками с едой в вашем регионе?
- Установите ли вы цены ниже, чем у конкурентов?
- Будете ли вы предлагать продукт, которого никогда раньше не видели?
Как вы будете развивать свой бизнес?
- Будете ли вы нанимать больше сотрудников?
- Будете ли вы приобретать больше грузовиков с едой?
- Будете ли вы расширять географическую зону, которую обслуживает ваш грузовик?
Как вы будете распространять свою продукцию?
- Вы будете продавать только со своего грузовика?
- Будете ли вы посещать ярмарки или фестивали продовольственных грузовиков?
Как вы будете обращаться к своим клиентам?
- Будете ли вы размещать рекламу в традиционных СМИ (радио, газеты, рекламные щиты)?
- Будете ли вы развивать присутствие в социальных сетях , используя Facebook, Twitter, Instagram или TikTok ?
- Будете ли вы предлагать специальные вознаграждения или скидки для постоянных клиентов?
- Будете ли вы раздавать бесплатные образцы, чтобы привлечь будущих клиентов?
- Будете ли вы создавать интерактивную карту, чтобы помочь клиентам найти ваш грузовик?
Сколько продаж необходимо, чтобы ваш фургон с едой был прибыльным?
- Какова справедливая цена меню для продуктов, которые вы будете продавать?
- Сколько дней ты будешь снимать в году?
- Будете ли вы продавать зимой или только в теплое время года?
Вернуться к началу
7.
Запрос на финансированиеНе каждый бизнес-план грузовиков с едой содержит раздел запроса на финансирование, но его следует рассмотреть. Может быть сложно определить, сколько стоит грузовик с едой, но это необходимая часть обеспечения стартовый кредит .
Если вы планируете запросить финансирование, вы должны четко объяснить, сколько средств вам нужно, для чего они вам нужны и как вы будете возвращать все, что вам нужно. Не забудьте включить стоимость страховки для грузовиков с едой , стоимость топлива и любые разрешения или лицензии , которые вам понадобятся для начала ведения бизнеса.
Раздел о финансировании бизнес-плана для продовольственных грузовиков
Подумайте об этих важных вопросах, когда вы создаете запрос на финансирование продовольственных грузовиков:
- Сколько капитала вам действительно нужно?
- Предвидите ли вы потребность в большем финансировании в будущем?
- Как вы будете использовать полученные средства?
- Как вы будете выплачивать кредиты?
- Каковы потенциальные выгоды для инвестора, если ваш фургон с едой преуспеет?
- Как эти средства создадут новые возможности для вашего фудтрака?
8.
Финансовые прогнозыКогда вы начинаете свой бизнес по производству грузовиков с едой с нуля, трудно понять, каковы реалистичные финансовые прогнозы, но для эффективного распределения средств важно проанализировать целевой рынок и установить четкие финансовые цели. .
Если ваш бизнес уже существует несколько лет, в этот раздел бизнес-плана по продаже грузовиков с едой следует включить исторические финансовые данные. Однако, если вы только начинаете, вам нужно будет рассчитать, сколько ваш бизнес потенциально может заработать в течение следующих пяти лет, используя реалистичные предположения. Убедитесь, что эти финансовые прогнозы по грузовикам с едой совпадают со средствами, которые вы запросили в своем запросе на финансирование.
9. Приложение
Раздел приложений не является обязательным в каждом бизнес-плане грузовиков с едой, но это отличное место для включения информации, которая больше нигде не поместилась, от фотографий продукта до разрешений на строительство и рекомендательных писем.
Вернуться к началу
Запуск собственного фудтрака поначалу кажется непосильным, но написание бизнес-плана — отличный первый шаг. Это поможет вам организоваться и осветить детали, которые вы, возможно, изначально не рассматривали. Как только вы закончите свой бизнес-план, вы будете готовы воплотить свою мечту в жизнь.
Шаблон и образец бизнес-плана для грузовиков с едой (2023)
Бизнес-план для грузовиков с едой
Вы попали в нужное место, чтобы создать бизнес-план для грузовиков с едой.
Мы помогли более чем 100 000 предпринимателей и владельцев бизнеса составить бизнес-планы, и многие из них использовали их, чтобы запустить или развить свои грузовики с едой.
Вы можете скачать бизнес-план Food Truck (включая полную настраиваемую финансовую модель)
на свой компьютер здесь <–
Пример и шаблон бизнес-плана для грузовиков с едой
Ниже приведен шаблон, который поможет вам создать каждый раздел вашего бизнес-плана для грузовиков с едой.
Резюме
Обзор бизнеса
Продовольственный фургон Пикантного Зейна — это новый продовольственный фургон, расположенный в Портленде, принадлежащий местному шеф-повару Зейну Бенедикту, получившему признание критиков. Меню будет состоять из популярных вариантов блюд, включая гамбургеры, сэндвичи, гироскопы и тако, уникально приготовленные с творческим подходом и уникальностью, которые может предложить шеф-повар Зейн. Эклектичный стиль и постоянство шеф-повара Зейна сделали его фаворитом среди портлендских гурманов, а его фудтрак завоюет верных поклонников среди молодых специалистов и студентов колледжей.
Грузовик с едой Зести Зейн будет расположен в чрезвычайно популярной капсуле для грузовиков с едой, известной как Картопия. Шеф-повар Зейн получит много внимания, став частью этого сообщества, так как поблизости есть множество фургонов с едой, баров, ночных клубов и развлекательных заведений. Благодаря популярному местоположению Cartopia и впечатляющему количеству подписчиков в социальных сетях в Instagram ресторан Zesty Zane’s Food Truck суждено стать местным местом, где можно пообедать для всех, кто жаждет вкусных и интересных блюд по доступной цене.
Подаваемые продукты
В магазине Zesty Zane’s Food Truck предлагаются следующие продукты:
- Сэндвичи и панини
- Гироскопы
- Бургеры
- Тако
- Картофель фри
- Ассорти из безалкогольных напитков
Легко составьте бизнес-план для грузовиков с едой!
Загрузите шаблон бизнес-плана продовольственного грузовика (включая настраиваемую финансовую модель) на свой компьютер здесь <–
Фокус на клиентах
Food Truck Zesty Zane будет нацелен на клиентов в Портленде, которые живут, работают или общаются недалеко от Картопии. Этот район часто посещают многочисленные молодые специалисты, студенты колледжей и ночные толпы, которые регулярно едят в фургонах с едой. Целевыми клиентами Zesty Zane’s Food Truck являются все, кто ищет модные рестораны.
Группа управления
Шеф-повар Зейн проработал в кулинарии более десяти лет и привык к долгим часам напряженной работы на кухне.
Он учился в кулинарной школе в Сан-Франциско и вернулся домой в Портленд, чтобы стать частью всемирно известной гастрономической сцены, которую Портленд построил для себя. Поработав под руководством трех шеф-поваров, отмеченных наградами, шеф-повар Зейн готов отправиться в одиночку и начать свой собственный бизнес в качестве фургона с едой.
Шеф-повар Зейн Бенедикт станет владельцем и оператором своего грузовика с едой. Он будет управлять грузовиком с едой со вторника по воскресенье с 11:00 до 1:00. Шеф-повар Зейн также наймет двух поваров на неполный рабочий день, чтобы они помогали ему в часы пик.
Факторы успеха
Следующие факторы успеха позволят Zesty Zane’s Food Truck выделиться среди конкурентов:
- Исключительная кухня, приготовленная из свежих продуктов местного производства.
- Эклектичное меню, не похожее ни на одно другое на гастрономической сцене Портленда.
- Удобное расположение: ресторан Zesty Zane’s Food Truck будет расположен в переполненном фургоне с едой, который часто посещают студенты колледжей, молодые специалисты и завсегдатаи ночных клубов.
- Вкусная еда по хорошей цене. Продукты питания Zesty Zane будут дешевле, чем другие блюда из грузовиков с едой, без ущерба для качества.
Финансовые показатели
Food Truck Zesty Zane ищет 40 000 долларов долгового финансирования для открытия своего фургона с едой. Финансирование будет направлено на покупку продовольственного грузовика, кухонных принадлежностей и оборудования, оборотных средств, трехмесячных расходов на заработную плату и открытие инвентаря. Прорыв финансирования ниже:
- Покупка фудтрака – 20 000 долларов США
- Кухонные принадлежности и оборудование для грузовиков с едой – 10 000 долларов США
- Начальный инвентарь – 2000 долларов США
- Оборотный капитал (включая накладные расходы за 3 месяца) – 3000 долларов США
- Маркетинг (дизайн и управление веб-сайтом) — 5000 долларов США
На следующем графике представлены предварительные финансовые прогнозы для Zesty Zane’s Food Truck:
Обзор компании
Кто такой продовольственный грузовик Зести Зейн?
Zesty Zane’s Food Truck — это стартап по производству грузовиков с едой, расположенный в Портленде, штат Орегон.
В меню представлены эклектичные блюда, приготовленные на заказ в стиле бистро, которые подаются свежими и быстро в развлекательном районе Портленда. Ингредиенты поступают из местных источников от независимых производителей продуктов питания и ремесленников в регионе Портленд и его окрестностях. Блюда объединены с гениальным поворотом к общеизвестным популярным пунктам меню. Варианты меню — это простые блюда, которые обычно можно увидеть в фургонах с едой, но шеф-повар Зейн добавляет свою изюминку к типичной еде — сэндвичи, гироскопы, гамбургеры и тако — все это сделано им в отличие от любого другого заведения питания.
Продовольственный фургон Зести Зейна принадлежит и управляется Зейном Бенедиктом, местным шеф-поваром, получившим классическое образование в кулинарной школе под руководством самых престижных шеф-поваров Портленда. Шеф-повар Зейн известен своим творчеством, последовательностью и быстротой на кухне, а его блюда получают множество положительных отзывов в ресторанах, где работал Зейн.
Шеф-повар Зейн специализируется на изысканной французской, итальянской и средиземноморской кухне с творческим подходом, который обычно не встречается в других ресторанных заведениях.
История грузовика Zesty Zane’s Food Truck
После окончания кулинарной школы в 2008 году шеф-повар Зейн Бенедикт работал су-шефом в трех разных ресторанах Портленда. Все повара, под руководством которых работал Зейн, были удостоенными наград местными поварами, которые часто обучали своих учеников готовить блюда в соответствии с их ожиданиями и стандартами.
Шеф-повар Зейн многому научился у этих поваров и сам заработал репутацию благодаря своему творчеству и последовательности. Теперь, когда Зейн чувствует, что научился всему, чему может, от старших поваров, он хотел бы рискнуть самостоятельно и начать свой собственный бизнес. Из-за большого количества капитала, необходимого для открытия полномасштабного ресторана, шеф-повар Зейн решил, что бизнес на грузовиках с едой будет наиболее рентабельным вариантом для его работы.
С момента основания компания Zesty Zane’s Food Truck достигла следующих результатов:
- Разработал фирменный стиль грузовика с едой, социальные сети и веб-сайт.
- Мягко удерживает подержанный грузовик с едой, который недавно вышел из строя.
- Разработано и доработано меню блюд, которые будет подавать шеф-повар Зейн.
- Получение лицензии на питание, позволяющей готовить и продавать еду и напитки в округе Портленд.
- Получено разрешение на налог с продаж и использование для использования в округе Портленд.
Вы можете скачать бизнес-план Food Truck (включая полную настраиваемую финансовую модель)
на свой компьютер здесь <–
Продукты Zesty Zane’s Food Truck
Ниже перечислены типы продуктов, которые Zesty Zane’s Food Truck производит:
- Сэндвичи и панини
- Гироскопы
- Бургеры
- Тако
- Картофель фри
- Ассорти из безалкогольных напитков
Анализ отрасли
Продавцы грузовиков с едой будут продолжать хорошо работать в течение следующих пяти лет, получая выгоду от потребителей с более глубокими карманами, которые могут тратить деньги на более дорогие продукты для гурманов.
Ожидается, что за этот период выручка вырастет до 1,4 миллиарда долларов.
Ожидается, что отраслевые операторы продолжат рост, так как в целом положительные экономические условия и импульс движения деликатесов способствуют росту.
В настоящее время потребители требуют продуктов питания более высокого качества, более широкого разнообразия стилей и вкусов, лучшей подачи и, самое главное, более здоровых вариантов меню. Таким образом, операторы, которые включают в свое меню здоровые блюда, будут иметь наилучшие шансы на успех в течение следующих пяти лет. Продавцы, которые продолжают предлагать уникальные варианты продуктов питания, также будут в сильной позиции, занимая нишу и создавая базу лояльных клиентов.
Промышленность также выиграет от роста городского населения, которое, как ожидается, составит большую часть населения США через пять лет. Промышленность выигрывает от агломерации, потому что она зависит от большого пешеходного трафика. Кроме того, городские жители также чаще покупают еду, чем готовят дома, из-за их доходов выше среднего и ограниченного свободного времени.
Легко составьте бизнес-план для грузовиков с едой!
Загрузите шаблон бизнес-плана продовольственного грузовика (включая настраиваемую финансовую модель) на свой компьютер здесь <–
Анализ клиентов
Демографический профиль целевого рынка
Food Truck Zesty Zane будет нацелен на население Портленда, которое часто обедает в развлекательном районе. В Портленде есть большой район для грузовиков с едой, известный как Картопия, где шеф-повар Зейн откроет свой бизнес. Этот район является домом для многочисленных ресторанов, ночных клубов, баров, клубов и фургонов с едой. Целевым рынком в этой области обычно являются молодые специалисты и студенты колледжей, имеющие располагаемый доход.
Точные демографические данные для Портленда, штат Орегон:
| Итого | Проценты | |
|---|---|---|
| Всего населения | 590 157 | 100% |
| Мужской | 284 873 | 48,30% |
| Женщины | 305 284 | 51,70% |
| До 5 лет | 41 749 | 7,10% |
| от 5 до 9 лет | 43 509 | 7,40% |
| от 10 до 14 лет | 41 324 | 7,00% |
| от 15 до 19 лет | 43 301 | 7,30% |
| от 20 до 24 лет | 48 119 | 8,20% |
| от 25 до 34 лет | 106 407 | 18,00% |
| от 35 до 44 лет | 73 788 | 12,50% |
| от 45 до 54 лет | 64 669 | 11,00% |
| от 55 до 59 лет | 35 109 | 5,90% |
| от 60 до 64 лет | 27 995 | 4,70% |
| от 65 до 74 лет | 39 539 | 6,70% |
| от 75 до 84 лет | 17 394 | 2,90% |
| 85 лет и старше | 7 254 | 1,20% |
| Всего единиц жилья | 260 024 | 100% |
Сегментация клиентов
Ресторанный фургон Zesty Zane в первую очередь ориентирован на следующий профиль клиентов:
- Местные жители Портленда, которые участвуют в ночных мероприятиях, таких как общение с друзьями или посещение баров
- Бизнес-специалисты, работающие и проживающие в районе Портленда Картопия — юридические конторы, больницы, клиники, страховые агентства, розничная торговля и школы
- Студенты колледжа, которые ищут быструю, дешевую и модную еду
Вы можете загрузить бизнес-план Food Truck (включая полную настраиваемую финансовую модель)
на свой компьютер здесь <–
Конкурентный анализ
Прямые и косвенные конкуренты
Food Truck будет конкурировать с Zesty Zane’s другие местные грузовики с едой в сообществе Портленда.
Профиль каждого участника ниже.
Potato Champion
Potato Champion — местный фаворит портлендских гурманов, который также находится в Картопии. Созданный в 2008 году ресторан Potato Champion быстро зарекомендовал себя как фаворит среди любителей поздней еды. Potato Champion предлагает ограниченное меню из нарезанного вручную, дважды обжаренного картофеля фри по-бельгийски, различных соусов для окунания и собственной версии канадского классического путина, а также других блюд, связанных с жареным картофелем. Они гордятся тем, что используют ингредиенты высочайшего качества, и сосредоточены на изобретательном меню, которое сочетает в себе вкусы со всего мира с одним из самых популярных блюд в мире — картофелем фри.
Potato Champion открыт на обед, ужин и допоздна. Они доступны для общественного питания и доставки через Postmates. Последователи Картофельного чемпиона также могут покупать в своем магазине сувениры, в том числе музыку, сумки, значки и толстовки.
Pyro Pizza
Основанная Джоном Идсом в 2009 году компания Pyro Pizza была построена из тележки для еды размером 8 x 16 футов, которую он соорудил на заказ с чугунной дровяной печью. Помимо пиццы, приготовленной на дровах, Джон также делает свои собственные газированные напитки, используя только натуральные ингредиенты и натуральный тростниковый сахар. Джон убежден, что хорошие ингредиенты делают хорошую еду. Его команда производит многие компоненты самостоятельно и закупает местную муку, пепперони, колбасу, сыр с плесенью, ингредиенты для газированных напитков и сезонные продукты на предприятиях и фермах Портленда. В 2015 году Pyro’s расширился до новой тележки для сэндвичей Pyro’s Wicked Wiches — тележки для бутербродов, супов, чипсов и печенья, сделанных на пустом месте.
Pyro’s предлагает ассортимент пиццы на дровах, приготовленной с нуля. Их выбор: маргарита, маринара, руккола и грибы, пепперони, quattro formaggi, колбаса с фенхелем, вегетарианская бьянка, хлебные палочки, салаты и газированные напитки.![]()
Цыпленок и ружья
Цыпленок и ружья — еще один местный фаворит среди портлендских гурманов. В Cartopia также можно найти Chicken and Guns, где подают латиноамериканскую курицу, крылышки, тако, салат, суп, а их «пушки» — хрустящий приправленный картофель. Курицу подают четвертинкой, половинкой или целой птицей. Еще одним продуктом, которым они славятся, является их перуанский соус аджи, морковный соус хабанеро и соус чимичурри. PDX Eater назвал их лучшим жареным цыпленком в Портленде.
Chicken and Guns открыт ежедневно с 11:00 до 22:00 на вынос и доставку. Благодаря многочисленным подписчикам в Instagram и социальных сетях всегда суждено выстроиться в очередь к фургону с едой Chicken and Guns.
Легко составьте бизнес-план для грузовиков с едой!
Загрузите шаблон бизнес-плана продовольственного грузовика (включая настраиваемую финансовую модель) на свой компьютер здесь <–
Конкурентное преимущество
Грузовик с едой Зести Зейн предлагает несколько преимуществ по сравнению с конкурентами.
Этими преимуществами являются:
- Исключительная кухня, приготовленная из свежих продуктов местного производства.
- Эклектичное меню, не похожее ни на одно другое на гастрономической сцене Портленда.
- Удобное расположение: ресторан Zesty Zane’s Food Truck будет расположен в переполненном фургоне с едой, который часто посещают студенты колледжей, молодые специалисты и завсегдатаи ночных клубов.
- Вкусная еда по хорошей цене. Продукты питания Zesty Zane будут дешевле, чем другие блюда из грузовиков с едой, без ущерба для качества.
Маркетинговый план
Ресторан Zesty Zane’s Food Truck предложит своим клиентам уникальное ценностное предложение:
- Вкусная еда, приготовленная из свежих продуктов местного производства с использованием изысканных технологий.
- Расположен в ультрамодном районе продовольственных грузовиков, известном как Картопия.
- Отличная еда по отличной цене. Предложения меню Zesty Zane’s Food Truck будут доступны для клиентов из всех слоев общества.

Стратегия продвижения
Стратегия продвижения Zesty Zane’s Food Truck выглядит следующим образом:
Социальные сети
Основным источником маркетинга Zesty Zane’s Food Truck будут социальные сети, в первую очередь их страница в Instagram. Шеф-повар Зейн научился делать привлекательные фотографии своих блюд. Он опубликует фотографии своего меню и добавит подробности о местоположении и часах работы. У его аккаунта в грузовике с едой уже более 3000 подписчиков, и он ежедневно публикует тизерные фотографии «Скоро».
Местоположение
Грузовик с едой Зэсти Зейн будет припаркован в очень популярном перевалочном пункте для грузовиков с едой, известном как Картопия в Портленде. В этой капсуле расположены десятки фудтраков и всегда многолюдно. Cartopia принимает группы, художественные шоу, торговые мероприятия и другие общественные мероприятия, чтобы усилить развлекательную атмосферу капсулы. Будучи частью Cartopia, Food Truck Zesty Zane’s Food Truck получит много внимания и трафика.
SEO Маркетинг веб-сайтов
Food Truck Zesty Zane планирует инвестировать средства в поддержание сильного SEO-присутствия в поисковых системах, таких как Google и Bing. Когда человек вводит «местный фургон с едой» или «лучшие фургоны с едой в Портленде», фургон с едой Зести Зейн появляется в трех первых вариантах. Zesty Zane’s также будет инвестировать в свой веб-сайт, чтобы убедиться, что он удобен для пользователя, всегда актуален и отображает профессиональные фотографии пунктов меню и местоположения.
Сторонние сайты доставки
Zesty Zane’s Food Truck будет присутствовать на таких сайтах, как GrubHub, Uber Eats, Doordash и Postmates, чтобы люди, которые ищут местную еду с возможностью доставки, увидели в списке Zesty Zane’s.
Вы можете скачать бизнес-план Food Truck (включая полную настраиваемую финансовую модель)
на свой компьютер здесь <–
Ценообразование
Цены на грузовик с едой Зести Зейн будут умеренными и такими же, как у конкурентов, чтобы клиенты чувствовали, что получают выгоду при покупке блюд из своего меню.
Операционный план
Операционный план фургона с едой Зэсти Зейн относительно прост, поскольку его накладные расходы и стоимость невелики. Функциональные роли для его сотрудников следующие:
Операционные функции:
- Шеф-повар Зейн будет управлять грузовиком с едой. Он будет отвечать за инвентаризацию, создание меню, маркетинг, обслуживание клиентов и бухгалтерский учет. Шеф-повар Зейн будет работать каждый день, когда он решит открыть фургон с едой. Шеф-повар Зейн планирует работать с фургоном со вторника по воскресенье с 11:00 до 1:00.
- Два повара, работающие неполный рабочий день, которые будут попеременно помогать шеф-повару Зейну в часы работы. По мере того, как бизнес набирает обороты, в часы пик шеф-повару Зейну будут одновременно помогать два повара.
Легко составьте бизнес-план для грузовиков с едой!
Загрузите шаблон бизнес-плана продовольственного грузовика (включая настраиваемую финансовую модель) на свой компьютер здесь <–
Вехи:
Закусочная Zesty Zane’s Food Truck откроется в ближайшие 3 месяца.
Ниже приведены вехи, необходимые для достижения этой цели.
15.04.202X — Покупка фургона с едой
01.05.202X — Завершение меню
15.05.202X — Начало рекламной кампании в социальных сетях подготовить его к работе
10.06.202X – Закупить инвентарь с едой и напитками, складской грузовик и припарковать его в Cartopia
11.06.202X – Торжественное открытие фургона с едой Zesty Zane’s Food Truck
Команда управления
Zesty Zane’s Food Truck будет принадлежать и управляться шеф-повару Зейну Бенедикту.
Шеф-повар Зейн Бенедикт, владелец
Шеф-повар Зейн Бенедикт — уроженец Портленда, который учился в кулинарной школе в Сан-Франциско и вернулся в Портленд, чтобы стать частью всемирно известной гастрономической сцены, которой славится Портленд. Зейн прошел обучение у трех разных шеф-поваров в ресторанах изысканной кухни в центре Портленда и был удостоен звания лучшего су-шефа Портленда в 2017 году. Шеф-повар Зейн выиграл два местных кулинарных конкурса, занял второе место в конкурсе штата и участвовал в кулинарном конкурсе.
в продовольственной сети.
Шеф-повар Зейн получил множество наград за свой творческий подход и постоянство в приготовлении блюд, а также способность готовить блюда за короткое время. Его способность готовить еду под давлением дает ему уникальное умение обслуживать многочисленных клиентов, не заставляя их долго ждать. Это позволит клиентам оставаться довольными и возвращаться снова и снова.
Вы можете скачать бизнес-план Food Truck (включая полную настраиваемую финансовую модель)
на свой компьютер здесь <–
Финансовый план
Основные доходы и расходы
Источником доходов для Zesty Zane’s Food Truck будут пункты меню, предлагаемые ежедневно.
Факторами затрат будут ингредиенты и продукты, необходимые для приготовления пунктов меню (масло, хлеб, мясо, курица, продукты, напитки), а также материалы для приготовления пищи (кастрюли, сковороды, миски, тарелки, посуда и т. д.) . Другими драйверами затрат будут накладные расходы на заработную плату для сотрудников, занятых неполный рабочий день, и пропан для грузовика с едой.
Требования к финансированию и использование средств
Food Truck Zesty Zane ищет 40 000 долларов долгового финансирования для открытия своего фургона с едой. Финансирование будет направлено на покупку продовольственного грузовика, кухонных принадлежностей и оборудования, оборотных средств, трехмесячных расходов на заработную плату и открытие инвентаря. Прорыв финансирования ниже:
- Покупка грузовика с едой – 20 000 долларов США
- Кухонные принадлежности и оборудование для грузовиков с едой – 10 000 долларов США
- Начальный инвентарь — 2000 долларов США
- Оборотный капитал (включая накладные расходы за 3 месяца) – 3000 долларов США
- Маркетинг (дизайн и управление веб-сайтом) — 5000 долларов США
Легко составьте бизнес-план для грузовиков с едой!
Загрузите шаблон бизнес-плана продовольственного грузовика (включая настраиваемую финансовую модель) на свой компьютер здесь <–
Ключевые допущения
и для того, чтобы погасить бизнес-кредит.
Первоначальное количество клиентов в день: 50
Средняя стоимость пункта меню: 9,00 долл. США
Средний заказ на клиент: 15,00 долл. США
Годовые затраты на техническое обслуживание: 10 000 долл. США
Финансовые прогнозы
. Выписка о доходах
| 1 финансовый год | 2 финансовый год | 3 финансовый год | 4 финансовый год | 5 финансовый год | |||
|---|---|---|---|---|---|---|---|
| Доходы | |||||||
| Общий доход | 360 000 долл. США | 793 728 долл. США | 875 006 долл. США | 964 606 долл. США | , 320630 долл. США | ||
| Расходы и затраты | |||||||
| Себестоимость проданных товаров | 64 800 долл. США | 142 871 долл. США | 157 501 долл. США | 173 629 долларов | 191 409 долларов | ||
| Аренда | 50 000 долл. США | 51 250 долл. США | 52 531 долл. США | 53 845 долл. США | 55 191 долл. США | ||
| Маркетинг | 10 000 долл. США | 8 000 долл. США | 8 000 долл. США | 8 000 долл. США | 8 000 долл. США | ||
| Заработная плата | 157 015 долларов | 214 030 долларов | 235 968 долларов | 247 766 долларов | 260 155 долларов | ||
| Первоначальные расходы | 10 000 долл. США | 0 долл. США | 0 долл. США | 0 долл. США | 0 долл. США | ||
| Итого расходы и затраты | 291 815 долл. | 416 151 долл. | 454 000 долл.![]() | 483 240 долл. | |||
| EBITDA | 68 185 долл. США | 377 577 долл. США | 421 005 долл. США | 481 366 долл. США | 548 628 долл. США | ||
| Амортизация | 27 160 долларов | 27 160 долларов | 27 160 долларов | 27 160 долларов | 27 160 долларов | 0||
| EBIT | 41 025 долл. США | 350 417 долл. США | 393 845 долл. США | 454 206 долл. США | 521 468 долл. США | ||
| Проценты | 23 462 долл. США | 20 529 долл. США | 17 596 долл. США | 14 664 долл. США | 11 731 $ | ||
| ДОХОД ДО НАЛОГА | 17 563 долл. | 329 888 долл. | 376 249 долл. | 439 543 долл. | |||
| Чистый операционный убыток | $0 | $0 | $0 | $0 | $0 | ||
| Использование чистых операционных убытков | $0 | $0 | $0 | $0 | $0 | ||
| Налогооблагаемый доход | 17 563 долл. США | 329 888 долл. США | 376 249 долл. США | 439 543 долл. США | 509 737 долл. США | ||
| Расходы по подоходному налогу | 6 147 долл. США | 115 461 долл. США | 131 687 долл. США | 153 840 долл. США | 8 178 40 долл. США | ||
| ЧИСТАЯ ПРИБЫЛЬ | 11 416 долларов | 214 427 долларов | 244 562 долларов | 285 703 долларов | долларов |
Бухгалтерский баланс
| 1 финансовый год | 2 финансовый год | 3 финансовый год | 4 финансовый год | 5 финансовый год | ||
|---|---|---|---|---|---|---|
| АКТИВЫ | ||||||
| Денежные средства | 154 257 долл. США | 348 760 долл. США | 573 195 долл. США | 838 550 долл. США | 1 149 261 долл. США | |
| Дебиторская задолженность | $0 | $0 | $0 | $0 | $0 | |
| Товарно-материальные запасы | 30 000 долл. США | 33 072 долл. США | 36 459 долл. США | 40 192 долл. США | 44 308 долл. США | |
| Итого оборотные активы | 184 257 долл. | 381 832 долл. | 609 654 долл. | 878 742 долл. | ||
| Основные средства | $180,950 | $180,950 | $180,950 | $180,950 | 180 950 долл. США | |
| Амортизация | 27 160 долларов | 54 320 долларов | 81 480 долларов | 108 640 долларов | 135 800 долларов 905 800 долларов | |
| Чистые основные средства | 153 790 долл. США | 126 630 долл. США | 99 470 долл. США | 72 310 долл. США | 45 150 долл. США 905 150 долл. США | |
| ИТОГО АКТИВЫ | 338 047 долл. США | 508 462 долл. США | 709 124 долл. США | 951 052 долл. США | 1 238 744 долл. США | |
| ОБЯЗАТЕЛЬСТВА И КАПИТАЛ | ||||||
| Долг | 315 831 долл. США | 270 713 долл. США | 225 594 долл. США | 180 475 долл. США | 135 356 долл. США | |
| Кредиторская задолженность | 10 800 долл. США | 11 906 долл. США | 13 125 долл. США | 14 469 долларов | 15 951 долларов | |
| Общая сумма обязательств | 326 631 долл. США | 282 618 долл. США | 238 719 долл. США | 194 944 долл. США | 151 307 долл. США | |
| Акционерный капитал | $0 | $0 | $0 | $0 | $0 | |
| Нераспределенная прибыль | 11 416 долл. США | 225 843 долл. США | 470 405 долларов | 756 108 долларов | 1 087 437 долларов | |
| Общий капитал | 11 416 долларов | 225 843 долларов | 470 405 долларов | 756 108 долларов | 1 087,4 долларов | |
| ИТОГО ОБЯЗАТЕЛЬСТВА И КАПИТАЛ | 338 047 долл. | 508 462 долл. | 709 124 долл. | 951 052 долл. |
Отчет о движении денег



) — 2 995
д.)?
)

США
США
США
США
США